A home designed for climate responsiveness, affordability, and aging in place
In 2024, there were 27 $1 billion dollar weather events in the United States, so designing with climate in mind is more of an imperative than ever before. A new home in Austin, Texas makes a perfect case study on how to do this.

Barley | Pfeiffer Architecture doesn’t describe their homes as “sustainable.” Instead, they favor “climate responsive.” The reason? “Climate-responsive homes are inherently sustainable, but not every sustainable home is climate-responsive,” said Peter L. Pfieffer, FAIA, Principal. Their focus is on designing homes that reduce energy demand by accounting for real-world conditions. In their locale, managing heat is critical but that’s not all they seek to achieve. Affordability is also a goal.
To achieve all this, we’ll take you through the details of one of their soon-to-be-complete projects.
Site it right
One fundamental of their approach is getting the site planning right. The best way to do this is simple: Go out on site with some sketch paper. “I look for the sky” said Alan K. Barley, AIA, Principal. What he means by this is that he looks for places where the land is “scarred or torn up” so they can avoid removing trees and other vegetation. Leaving more nature intact doesn’t just preserve beauty; it also helps with wildfire management.

Bringing clients along on the site visit helps involve them in the process from the very start. The firm believes their role is not just to design houses but also to guide their clients. Involvement helps clients develop a sense of ownership. Photo courtesy of Barley | Pfeiffer Architecture.
In their experience, the place where people naturally gather is usually an ideal spot for the home. In this case, everyone gravitated to an opening between two hills covered in cedar scrub. The spot provides protection, showcases views, and allows the home to be ideally oriented for passive strategies, including natural cooling, enhanced natural ventilation, daylight harvesting, and passive heating.
Leveraging nature, rather than compensating with costly systems, is not new, of course. Barley pointed out homes built 200 years ago relied on the same common-sense approaches, but getting back to these basics is something that makes a home more resilient. The memory of Texas’ vast power outages in the winter of 2021 is still fresh, and the architects want their homes to be comfortable and resilient — even in such a worst-case scenario.
“Our job is to design a house that doesn’t need much energy in the first place,” Barley said. Getting the siting and orientation right is the first step.

The architects think of each custom home as a unique solution created for a unique set of circumstances. The land is one of those circumstances. Taking the time to get to know it, helped set them on the right design path here.
Keep design simple
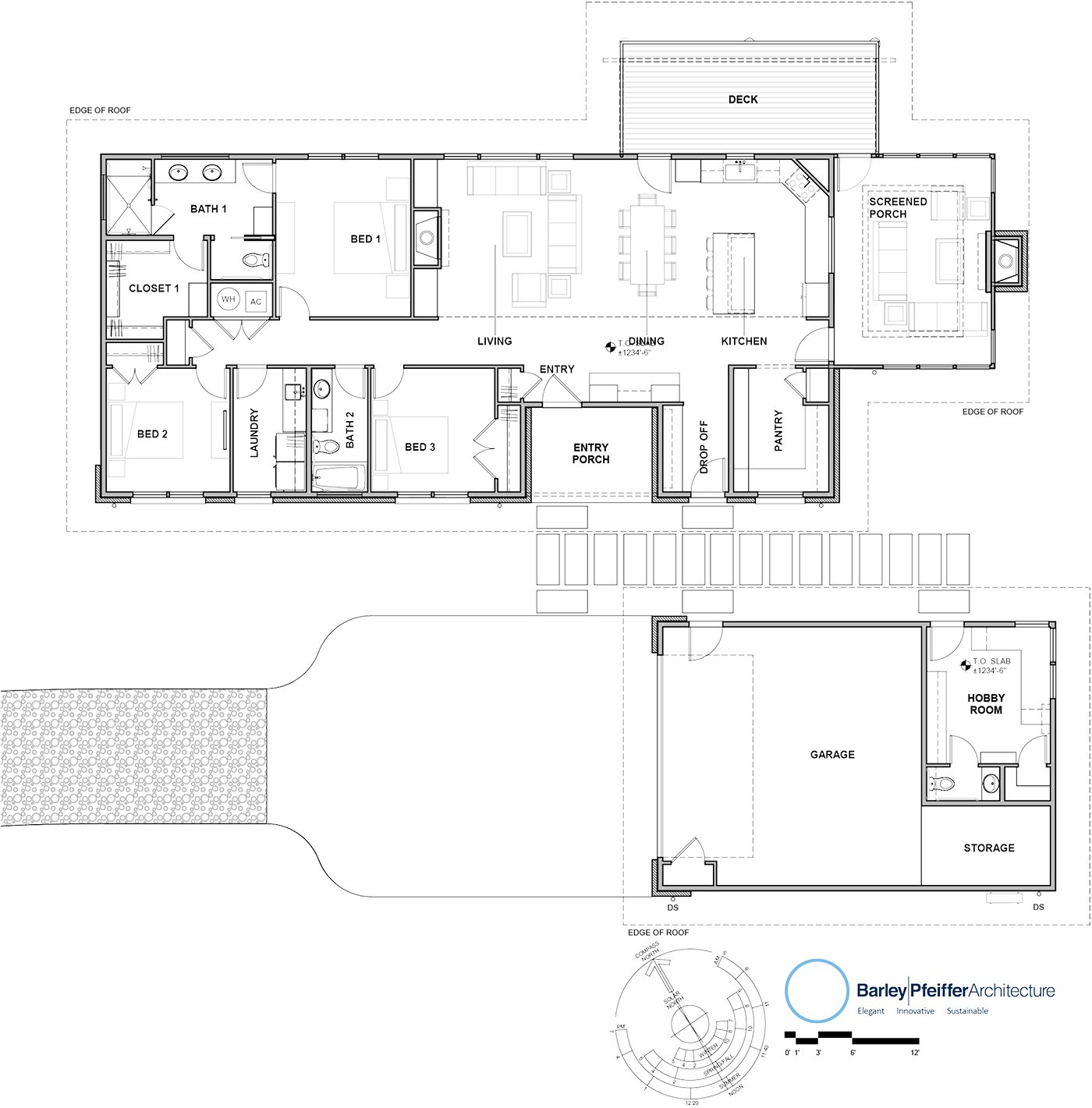
With the ideal site identified, the task of designing the home was simplified. The floorplan grew naturally around the opportunities for passive design strategies and the needs of the homeowners who are seniors looking to age in place. The plan includes 1,900 square feet in a single story with three bedrooms, two bathrooms, and an efficient layout that considers mobility impairment.
The home’s footprint is rectangular and oriented, so the long sides face north and south. The 100 Series windows are concentrated on these sides to avoid the intense solar radiation that comes from the west. All the windows are shaded by deep eaves and distributed on different sides of the home to bring reflected light from multiple directions along with cross breezes. Openings are concentrated in the gathering spaces but not overdone nor excessive. They are on the northern, eastern, and southern sides of the home where they bring light and views into the open-concept dining room, living room, kitchen, and the adjacent deck and screened-in porch.
The porch is positioned to catch the prevailing breezes from the Gulf of Mexico to the southeast. The deck is on the north side where it has views of the valley yet is well shaded by the roof, which is “Galvalume” low-heat-absorbing metal to reduce solar heat gain.
The bedrooms and bathrooms are on the western end of the house where exposure to the hot afternoon sun is minimized by having fewer windows. These spaces are reached by a corridor that’s wide enough to accommodate a wheelchair, if ever needed.

Gathering spaces are located where windows and doors allow in breezes and avoid excess solar heat gain. A large roof shades the home, including outdoor living spaces, like an umbrella. A detached garage helps improve indoor air quality by isolating fumes.
Careful planning to control costs
Judicious sizing was one way the architects managed the cost of the build. Barley emphasized the care they took to get the sizing of spaces like corridors just right. He calls it taking the “fat out of a house” which they do by placing the furniture into plans to make sure there’s enough room, but not too much room, in circulation spaces. Of course, getting the size right doesn't just cut down on the upfront costs; it also cuts down on the long-term costs of energy, taxes, and insurance.
Similarly, they thought carefully about materials selection opting for durable materials that are equipped for the climate and will last for many years. They chose 100 Series windows, which are comparable in price to vinyl windows, but much more thermally stable and rot resistant. They chose a metal roof and fiber cement siding because both are non-combustible. While some of these materials have higher upfront costs, their performance, minimal maintenance requirements, and longevity make them cost effective in the long run.

In the open-concept living room, a large window combination made of 100 Series Picture Windows and 100 Series Single-Hung Windows makes the most of the breezes and views. Photo courtesy of Barley | Pfeiffer Architecture.
Another way cost will be managed long term is through the solar array installed on the garage. This is expected to generate more than enough energy to power the home. While the architects would not rely on renewable energy alone to make the project “climate-responsive,” getting to net zero was an important goal of the homeowners. And the passive design principles integrated enable the home to remain comfortable and resilient in the aftermath of a likely natural disaster — even if the power were to go out.
Ultimately, what’s been created is a comfortable place that treads substantially lighter on the earth yet can be purchased under the terms of a conventional mortgage. As a physical space and in the ideals it represents, it’s a “small home that lives large,” as Barley put it.
This project was the 2025 Green Builder® Media’s VISION House® Austin.
More to explore

Pro View
How to account for climate when picking out windows

Proview
Reimagining the craftsman bungalow for modern living
An architect and builder team up to reimagine a craftsman bungalow perfectly suited to its owner’s needs, the surrounding neighborhood, and Austin’s climate.